info@mehprivod.ru
ООО Мехтехника
Тел.: 8 (800) 505-36-88

Двухступенчатый червячный редуктор Ч2-160

Двухступенчатый червячный редуктор Ч2-160

Как правило, редуктор червячный двухступенчатый ч2-160 выбирается в случае, когда возникает необходимость получить передаточное число с показателем выше 63. Эффективный выбор оборудования базируется на условиях его эксплуатации и величине нагрузок. Как и все червячные механизмы, редуктор Ч2-160 разработан в целях изменения крутящего момента в условиях частоты вращения входного вала не более 1500об/минуту. Эффективность применения подтверждена в умеренных, тропических, а также в умеренно-холодных зонах. Кроме того, червячные редукторы данного класса могут использоваться в помещениях без системы регулярного отопления, в том числе под навесом. Рабочий температурный диапазон зависит от правильности выбора масла и может составлять -45С – +40°С, предельные показатели находятся в прямой зависимости от конкретного климатического исполнения.

Цена: от 31 400 руб.

Скачать прайс: xls zip

УСЛОВИЯ ПРИМЕНЕНИЯ РЕДУКТОРОВ:

  • нагрузка постоянная и переменная, одного направления и реверсивная;
  • работа с периодическими остановками и длительная до 24 часов в сутки;
  • вращение валов в любую сторону;
  • частота вращения входного вала не более 1500 об/мин;
  • атмосфера типа I и II по ГОСТ 15150-69 при запыленности воздуха не более 10 мг/м3;
  • климатические исполнения У,Т для категорий размещения 1-3 и климатическое исполнения УХЛ и О для категорий размещения 4 по ГОСТ 15150-69.

Общее описание:

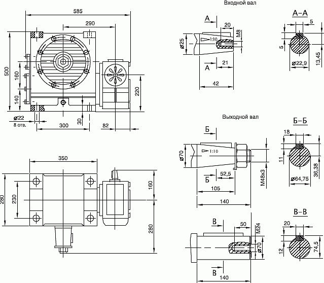
Габаритные и присоединительные размеры Ч2-160

РИС 1. Габаритные и присоединительные размеры

Схема сборки редукторов Ч2-160

РИС 2. Схема сборки редукторов

Варианты сборки червячных пар

РИС 3. Варианты сборки червячных пар

Технические характеристики

Параметр Передаточное число общее
100 125 160 200 250 400 630 1000 1600 2500 4000
Номинальный крутящий момент на выходном валу, Н.м при ПВ>63% 2500 3150 3150 3550 3550 3550 4000 4000 4000 3550 2800
при ПВ<63% 3100 3800 3150 3550 3700 4500 4400 5000 5300 5450 4000
при ПВ=40% 3500 4200 3150 3550 4100 4600 4600 5150 5300 5450 4000
при ПВ=25% 3700 4500 3150 3550 4600 4600 4600 5150 5300 5450 4000
при ПВ=16% 3995 5000 3150 3550 5150 4600 4800 5150 5300 5450 4000
КПД, % при ПВ>63%  77 74 73 68 65 60 55 50 35 30 22
Термическая мощность, кВт при ПВ>63% 3,15 3,15 3,15 3,47 2,90 2,90 2,05 1,24 1,09 0,92 0,92

Примечание: Значения крутящих моментов и КПД приведены при температуре окружающей среды +20оС и при использовании легированных масел. В случае применения нелегированных масел эти значения необходимо снизить на 14%.

Масса редуктора: 186,5 килограмм.

Пример условного обозначения при заказе

Редуктор Ч2-160-250-12-21-У2, что означает: редуктор червячный двухступенчатый типа Ч2 с межосевым расстоянием 160 мм, номинальным передаточным числом 250, вариантом сборки 12, вариантом расположения червячной пары 21, климатическим исполнением У и категорией размещения 2.